Trilocale in vendita

Roma, Prati Via Bu Meliana - Prati Milizie Candia
€ 500.000
3 locali 3 locali
76 Mq 76 Mq
3 bagni 3 bagni

Trilocale in vendita

Roma, Prati Via Bu Meliana - Prati Milizie Candia

Descrizione annuncio

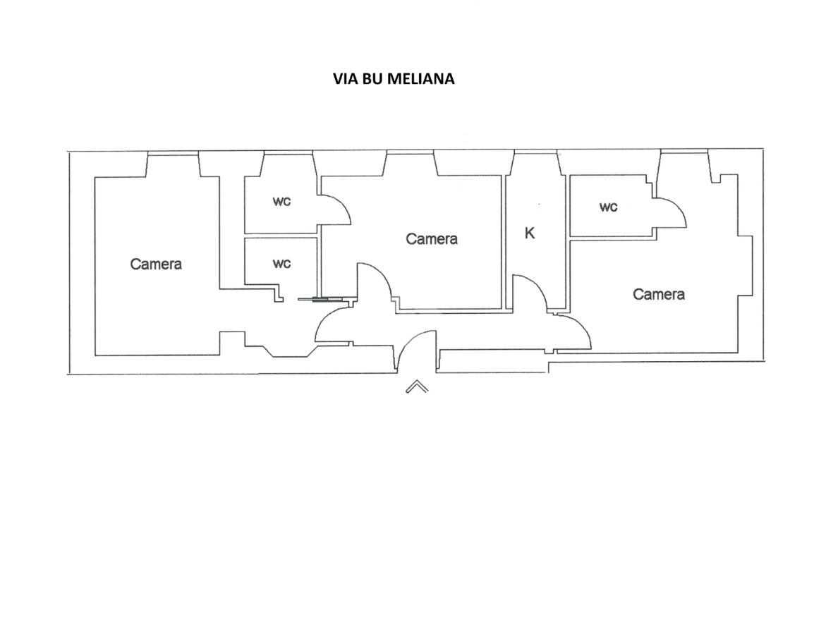
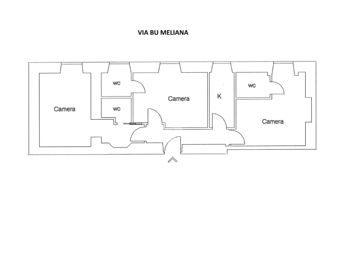
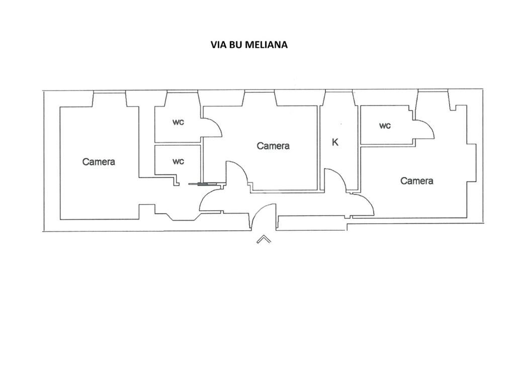
VIA BU MELIANA - A pochi passi dalla fermata della metro Ottaviano e da Piazza San Pietro, in uno dei punti più centrali del quartiere Prati, proponiamo la vendita di un trilocale posto al secondo piano e servito da ascensore.

Situato in un edificio d'epoca del 1927, l’appartamento, attualmente utilizzato come struttura ricettiva, è composto da un ingresso, tre camere da letto con tre bagni e cucina. L'affaccio è esterno su strada e tutti gli ambienti sono dotati di impianto di condizionamento.

La posizione strategica permette di godere di tutti i servizi e le comodità che la zona offre, oltre a un facile accesso ai mezzi di trasporto pubblico, nonchè alla pista ciclabile e a tutte le attività commerciali presenti nella zona. Questa proprietà rappresenta un'opportunità unica per chi desidera vivere in un contesto storico senza rinunciare alle comodità moderne.

Le informazioni, misure e planimetrie riportate nel presente annuncio sono meramente indicative e non costituiscono in alcun modo elementi contrattuali.

Mostra tutto

Nelle vicinanze

Trasporto pubblico Trasporto pubblico
Ottaviano
Ottaviano
380 m
Cipro
Cipro
710 m
Città del Vaticano
Città del Vaticano
1,2 Km
Appiano
Appiano
1,3 Km
Risorgimento/S. Pietro
Risorgimento/S. Pietro
670 m
Ricariche auto elettriche Ricariche auto elettriche
Parcheggio Mercato Trionfale - Musei Vaticani
360 m
Roma Clodio | EnelX
500 m
Eneldrive Risorgimento
580 m
Garage Properzio | EnelX
760 m
Roma Mazzini | EnelX
960 m
Scuole Scuole
Scuole
130 m
Liceo Cornelio Tacito
150 m
Scuola dell'infanzia ed Elementare Adelaide Cairoli
170 m
Scuola Media Statale Dante Alighieri
370 m
Istituto Leonarda Vaccari
410 m
Farmacia Farmacia
Ragoni
40 m
Mannucci
180 m
Marchetti
300 m
Farmacia Giulio Cesare
320 m
Re Clelia
350 m
Ospedali Ospedali
Pronto Soccorso Ospedale Oftalmico
580 m
Ospedale Oftalmico
640 m
Casa di Cura Santa Famiglia
900 m
Ospedale Santo Spirito in Sassia
1,3 Km
Pronto Soccorso Ospedale "Santo Spirito in Sassia"
1,4 Km
Supermercati Supermercati
NaturaSì
240 m
Bio mens
270 m
incoop
330 m
IN's mercato
370 m
Carrefour Express
380 m
Negozi Negozi
Bonci
80 m
Sari-Sari Store
230 m
Minimarket
240 m
Lolita
270 m
Dolce Maniera
290 m
Bar Bar
Bar
90 m
Enofficina
100 m
Fabrica
260 m
Alexanderplatz
260 m
Lu Night Bistrò
480 m
Ristoranti Ristoranti
Al giardino del gatto e la volpe
80 m
Antico Falcone
150 m
Casanova
160 m
Osteria dell'Angelo
170 m
Dino e Toni
170 m
Mostra tutto

Caratteristiche

Rif.:
61158945
Piano:
2 di 6 con ascensore (Piano medio)
Camere da letto:
3
Arredamento:
Parziale
Condizionamento:
Autonomo
Ascensore:
Mostra tutto
Prezzo Prezzo
€ 500.000
Rata mutuo Rata mutuo
€ 2.356 / mese
Proponi il tuo prezzoProponi il tuo prezzo

Classe Energetica

G
G
G
G
G
G
G
G
G
EP globale non rinnovabile:
175.00 kW h/m² anno
EP invernale del fabbricato:
EP estiva del fabbricato:
Anno di costruzione:
1930
Riscaldamento:
Centralizzato
Tipo impianto:
A radiatori
Tipo alimentazione:
Metano

Ti interessa visionare l'immobile?

Fissa un appuntamento  Fissa un appuntamento

Richiedi informazioni

Clicca su Leggi per aprire l'informativa
* Questi campi sono obbligatori

Calcola il tuo mutuo

Semplice e senza impegno
Anticipo

( % )
Mutuo

( % )

pochi semplici passi

inserisci i tuoi dati
Questionario completato
Grazie per aver richiesto un appuntamento senza impegno con un nostro Consulente del Credito e Assicurativo.

Hai inserito correttamente tutti i dati necessari e a breve riceverai una e-mail con un link da convalidare per inviare i tuoi dati.
Affiliato
Immobiliare Cipro Srl
Via Cipro, 51 00136 Roma (RM)

Il nostro staff


  • Daniele Trotta
    Responsabile

  • Leonardo Pescatore
    Affiliato
Via Cipro, 51 00136 Roma (RM)
Zona: Prati - Cipro
Mostra su mappa
Orari: Dal lunedì al venerdì: 9:00-13:00 e 15:30-20:30 Sabato: 9:00-13:00
Affiliato
Immobiliare Cipro Srl
Via Cipro, 51 00136 Roma (RM)

2026 Tecnocasa Franchising S.p.A. - P. IVA 08365160152 - Via Monte Bianco 60/A 20089 Rozzano (MI). Ogni agenzia ha un proprio titolare ed è autonoma. Privacy policy | Policy utilizzo | Cookie policy